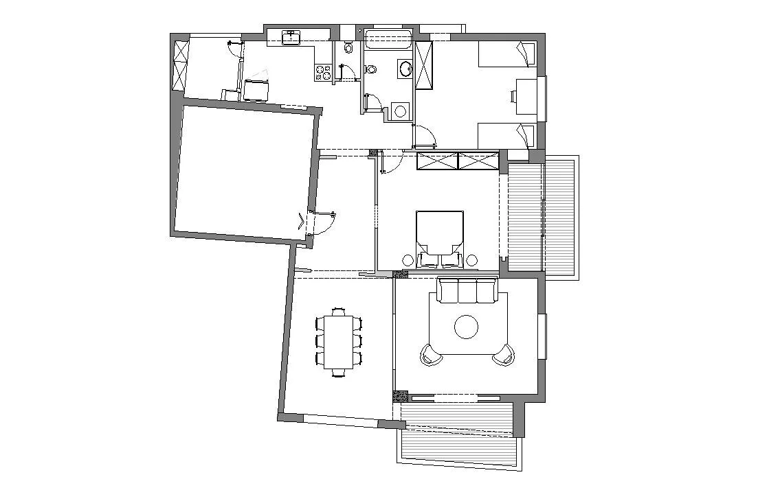
Before and After plans - move the slider to see the apartment’s old layout, versus the new one.
132 square meters / 1,420 square feet
Before and After plans - move the slider to see the apartment’s old layout, versus the new one.
109 square meters / 1,170 square feet
Before and After plans - move the slider to see the apartment’s old layout, versus the new one.
95 square meters / 1030 square feet
Before and After plans - move the slider to see the apartment’s old layout, versus the new one.
96 square meters / 1,030 square feet
Before and After plans - move the slider to see the apartment’s old layout, versus the new one.
135 square meters / 1,450 square feet
Before and After plans - move the slider to see the apartment’s old layout, versus the new one.
106 square meters / 1,140 square feet
Before and After plans - move the slider to see the apartment’s old layout, versus the new one.
66 square meters / 710 square feet
Before and After plans - move the slider to see the apartment’s old layout, versus the new one.
108 square meters / 1,160 square feet
Before and After plans - move the slider to see the apartment’s old layout, versus the new one.
58 square meters / 620 square feet
Before and After plans - move the slider to see the apartment’s old layout, versus the new one.
43 square meters / 460 square feet
Before and After plans - move the slider to see the apartment’s old layout, versus the new one.
128 square meters / 1,400 square feet
Before and After plans - move the slider to see the apartment’s old layout, versus the new one.
50 square meters / 540 square feet
Before and After plans - move the slider to see the apartment’s old layout, versus the new one.
102 square meters / 1,100 square feet
Before and After plans - move the slider to see the apartment’s old layout, versus the new one.
165 square meters / 1,800 square feet
Before and After plans - move the slider to see the apartment’s old layout, versus the new one.
101 + 23 square meters / 1,100 + 250 square feet
Before and After plans - move the slider to see the apartment’s old layout, versus the new one.
88 square meters / 950 square feet
Before and After plans - move the slider to see the apartment’s old layout, versus the new one.
0 LikesShare
40 square meters / 430 square feet
Before and After plans - move the slider to see the apartment’s old layout, versus the new one.
59 square meters / 635 square feet
Before and After plans - move the slider to see the apartment’s old layout, versus the new one.
